Обяви За нас Контакти
Продава КЪЩА
град София, Драгалевци
850 000 €
1 662 455.50 лв.

(3 195 €, 6 248.88 лв./m2)
Цената е без ДДС
История на цената
Коригирана в 8:28 на 1 декември, 2025 год.
Обявата е посетена 896 пъти.
Площ:
266 m2
Двор:
500 m2
Строителство:
Тухла, Ще бъде въведен в експлоатация 2025 г.

Описание на имота:


ЛОКАЦИЯ!!! КАЧЕСТВО!!! СТИЛ!!!
Точно зад Фантастико на бул. Черни връх, сгушена на тиха улица, заобиколена от зеленина, затворени комплекси и нови къщи се намира нова, самостоятелна, новопостроена, качествена и модерна къща на три етажа, с 4 спални, 3 бани, огромен хол и чудесен двор! Къщата е дело на строител и инвеститор, който оперира над 20години на пазара! Изградена е с най-висок клас качествени материали, изключителна изолация и функционално разпределение!
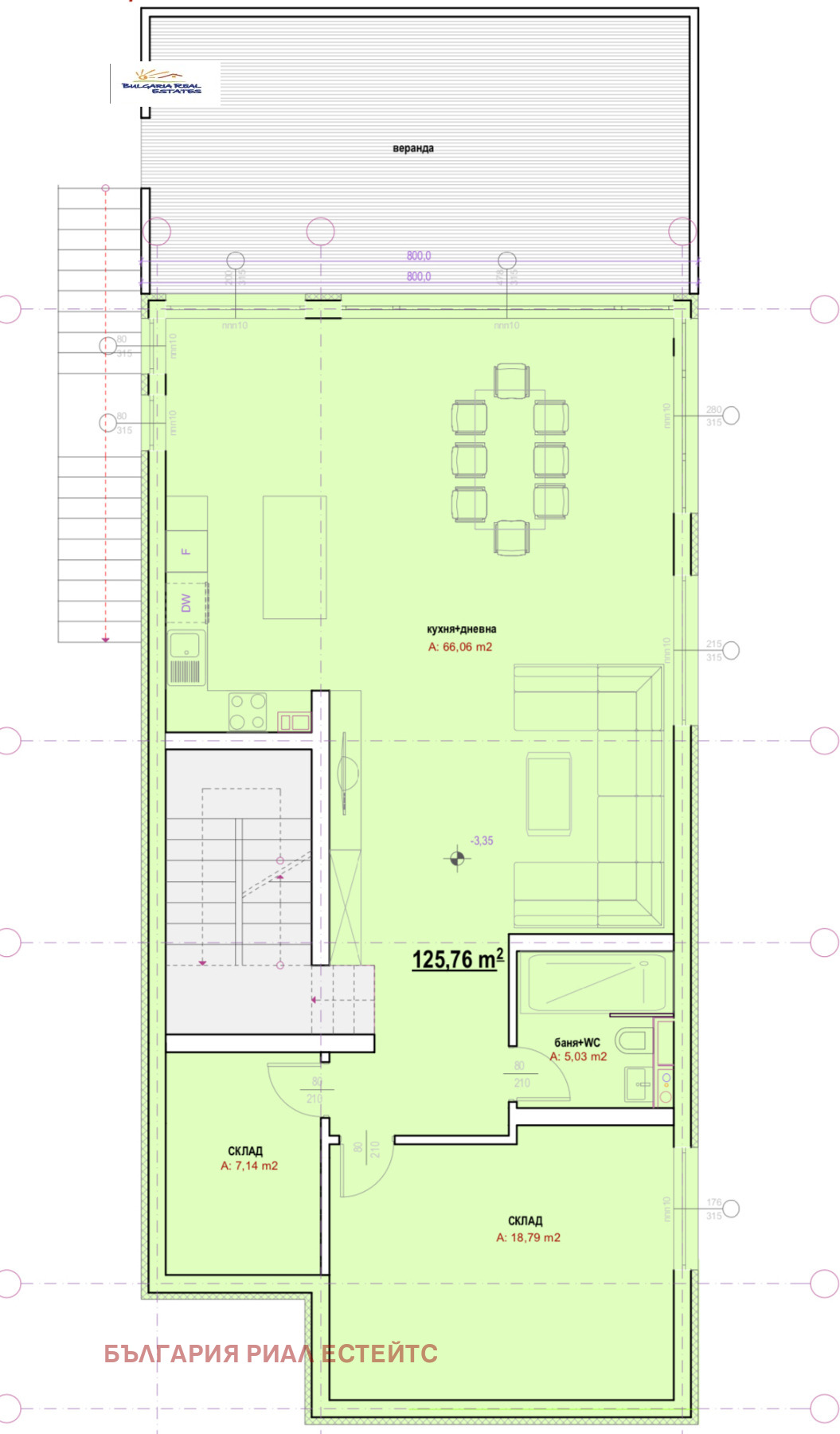
На сутеренно ниво е разположена голяма всекидневна с кухненски бокс 66кв.м., с високи тавани, цялата във високи френски прозорци, с излаз на голям озеленен двор под който минава рекичка. Зад Вашата всекидневна са разположени още баня с тоалетна 5кв.м., кабинет/фитнес/спалня с големина 19кв.м., склад 7кв.м. И стълбищна клетка, под която може да се обособи пространство за гардеробна!
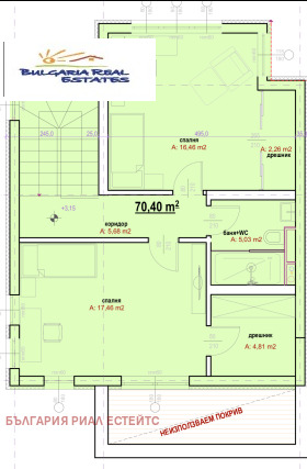
На ниво 1 са разположени голяма спалня 20кв.м. със собствен санитарен възел, огромен дрешник 13кв.м. И прекрасна голяма зимна и лятна тераса!
На ниво две има още две спални по 17кв.м, като едната е със собствен дрешник и балкон и обща баня и тоалетна!
Покривът на къщата е плосък, от който се открива невероятна Панорама към София и Витоша планина, дали ще го обособите като още една тераса или ще поставите фотоволтаични панели, които ще покриват сметките ви за ток? Изборът е Ваш!
Изградено е подово отопление и на трите нива за термопомпа! Дограмата е най-висок клас SCHUCO троен стъклопакет със стъкла 4 сезона!
Ако мечтаете да живеете в градска луксозна къща, на топ локация с високо качество на изпълнение и живот, се обадете на водещ брокер Жаклин Банчева на тел: +359877 164 800

Особености
Тухла
За контакт:
0877164800
Брокер:
Жаклин Банчева
0877164800
Още оферти от брокера: Продава | Дава под наем | Купува | Наема
Агенция:
БЪЛГАРИЯ РИАЛ ЕСТЕЙТС
0887 770927
БЪЛГАРИЯ РИАЛ ЕСТЕЙТС logo
Медал за прослужено време
В imot.bg от 2008 г.
rbland.imot.bg
Адрес:
област София, гр. София, бул. Витоша 90, ет.5, офис 6
ИЗПРАТИ ЗАПИТВАНЕ
ИЗПРАТИ ЗАПИТВАНЕТО

Продава КЪЩА
град София, Драгалевци
Обява: 1j176190329634768

850 000 €
1 662 455.50 лв.
История на цената
(3 195 €, 6 248.88 лв./m2)

Цената е без ДДС
ЗАПАЗИ ОБЯВАТА

Местоположение: град София, Драгалевци

Допълнителни данни за имотите в района и сравнение с други райони

Покажи

Период

* Средните цени са определени чрез медианна стойност